--   |  设为首页

帮忙装修网

中山

[切换]

什么是家居动线,家居动线设计得好,空间不止大一倍

来自:中山帮忙装修网 日期:2019-06-03 10:20:15 11644 次 分享到:
导读:
今天中山装修公司网来讲下家居动线对家装设计的重要性和什么是家居动线?

   

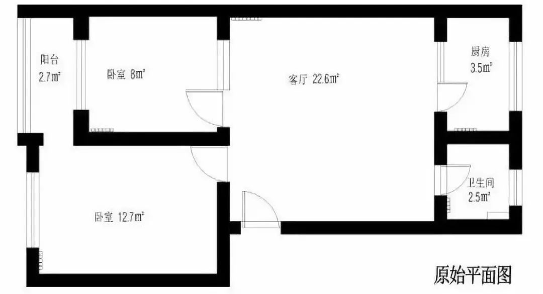
我们先来看下这样一张户型图,试想可能会发生的生活场景:

在外面吃过晚饭带了半个西瓜

回到家经过客厅到厨房把西瓜放进冰箱

去卧室拿了换洗衣服再路过客厅去卫生间

洗过澡出来路过客厅去阳台把衣服扔进洗衣机

最后再走回厨房拿出西瓜开始享受美味

 

发现没,时间都花在来回走动上了,客厅已经变成了过道,如果家里刚好有客人在,洗澡出来的场面……

 

同样的情景发生在另一个户型里:


走动有所减少,不需要总是穿过客厅了。

之所以出现这样的区别,关键在于家居动线的设计是否合理。

1

什么是家居动线

 

就是在家里进行做饭、打扫、洗衣晾衣、洗漱睡觉等日常活动时走来走去的路线,好的动线能让我们在最短的时间里快速做完事,舒适且有效率。

常见的家居动线分为三种:

 

居住动线——一般是睡觉休息的事情,涉及卧室、书房等私人区域

家务动线——像打扫、做饭、洗衣等家务,对应厨房、餐厅、阳台等区域

访客动线——会客,多在客餐厅等公共区域

 

 

2

好的家居动线

 

规划家居动线时要时刻思考平时的生活习惯,知道自己什么需求频率高,什么状态持续久,想要的区域是哪些,这样设计出的动线才会更好更有合理性。

好的家居动线应该满足的条件:动静分区少交叉、路线越短越方便、做好收纳

 

动静分区少交叉 

 

动区就是家里人活动量大的区域,包括客餐厅、厨房、阳台等。

静区则指较少走动,需要相对安静、隐私的空间区域,包括卧室、书房、次卫等。

 

动区和静区应该分割明确,尽量避免动线交叉。这样客人在聊天吃饭、找卫生间时,就不会误入卧室这样的隐私区域。

 

 

有的户型如果本身就是客厅对着卧室的,为了保护主人隐私,可以考虑设置隔墙或者屏风,更好地划分动静两区。

 

 

路线越短越方便 

 

活动比较频繁的的区域应当尽量集中在一起,比如做饭一整套的活动(家务动线):

 

 

取材?清洗?处理食材?烹饪?装盘,这里的动线设计要考虑到如何操作方便、节约时间。

 

 

不管厨房是L型、U型、平行,只要形成金三角,做饭的活动都是在三条边上,就能保证不会来回反复的走路去拿取、清理东西。 

 

● 厨房安排在最靠近入户门的地方,买回来的食材能第一时间放到厨房。

● 餐厅尽量靠近厨房,传菜方便,吃完收拾碗筷也便捷。

● 洗衣机放在阳台上,洗完直接晾晒。

 

 

洄游动线

 

这是日本家居设计中的常用手法,通过增加门洞的数量,改变家具摆设,形成一个环形动线,避免交叉或绕路。

 

 

小户型非常适合这种洄游动线设计,既提高了空间利用率,增加采光和通风,也增加了家人的互动性。

3

做好收纳

 

总觉得家里很乱,整理不明白。可能是因为动线上没有考虑收纳。

 

比如回到家时从进门到坐下这一动线,很多人家里一进门就是客厅,进家后一股脑先把手上东西全甩在客厅沙发上。然后回房间呆着了,可能到下次需要的时候才想起来去整理。

 

 

解决这个问题就要在这一动线增加收纳空间,玄关的合理设计能保证客厅的整洁。

 

有些家庭在进门附近会设计一个小的储藏室,回家时随手将买的卷纸、牙膏等日用品顺路放好。

 

 

如果这个储藏空间不在进门到目的地坐下的这个动线上,很大可能就不会特意走过去,手上东西也随缘走哪丢哪了。

 

总之,越是合适自己生活习惯的动线越合理,越是节省时间提高效率的动线越好。

 

或拨打免费热线:13822775923

已成功招标53521